Terrain + Maison sur aussonne - 4 pièce(s) avec terrain de 594 m² 311900 €
Caractéristiques
Réference
TMAM01568639313248
Superficie terrain
594 m2
Viabilisé
Oui
Surface maison
84
Nombre de pièces
4
Nombre de chambre
3
Prix
311 900 €
Description de l'annonce
Informations du terrain : Parcelle arborée et clôturée sur 3 cotés.Uun environnement calme. COS à 0.25 qui devrait passer à 0.33 à l'accord du nouveau PLUIH début 2026
Dans un cadre verdoyant, très bien exposée et proche des commerces et services, cette parcelle (apportée par notre partenaire foncier sous réserve de disponibilité), d’une superficie de 594 m², peut accueillir, dès aujourd'hui, votre projet de construction.
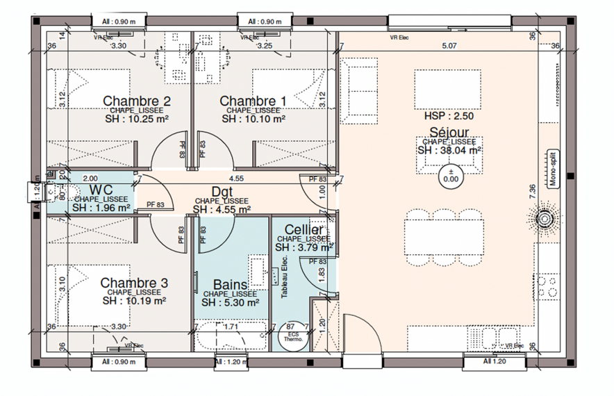
Comme toute création Villas et Maisons de France. ce modèle Andromède, aux lignes caractéristiques de la nouvelle Villa Occitane, est intégralement modulable par notre bureau d'étude interne et spécialisé. Notre version catalogue de 84 m² habitables comprend une partie jour dotée d'une pièce de vie de plus de 38 m², à la luminosité optimale, agrémentée d'une cuisine ouverte avec cellier accolé. Côté nuit, le confort est assuré par 3 chambres ergonomiques, une salle de bain spacieuse et des WC séparés.
Avec un process de haute qualité environnementale, Villas et Maisons de France conçoit et construit votre maison sur-mesure en réduisant son empreinte carbone ; RE 2020, étiquette énergie A, tri sélectif et valorisation des déchets garantis. Notre label Properméa atteste de la qualité de notre traitement de l’étanchéité à l’air. Côté administratif, vous serez accompagnés par nos soins de l’accord de prêt à l’obtention du permis de construire en passant par l’acte authentique d’acquisition du terrain.
Notre Contrat de Construction de Maison Individuelle, CCMI, vous confère Garantie de Livraison, Assurance Décennale Dommages Ouvrage, Garantie de Parfait Achèvement et Biennale. Apportez votre pierre à l'édifice; optez pour la qualité et construction durable, Contacter Arnaud MERCIER au 06 20 74 42 73.
Prix avec assurance dommages-ouvrage comprise, VRD non compris, terrain non viabilisé, frais de notaire non compris, frais divers non compris. Terrain sélectionné et vu pour vous sous réserve de disponibilité et au prix indiqué par notre partenaire foncier. Plans contractuels, visuels non contractuels.
je suis intéressé(e) par cette annonce






