Terrain + Maison sur beaumont-sur-leze - 5 pièce(s) avec terrain de 640 m² 428352 €
Caractéristiques
Réference
TMSH015685D262FEE6
Superficie terrain
640 m2
Viabilisé
Oui
Surface maison
153
Nombre de pièces
5
Nombre de chambre
4
Prix
428 352 €
Description de l'annonce
Informations du terrain : Terrain de 640 m² – Beaumont-sur-Lèze, cadre verdoyant et paisible
Joli terrain de 640 m², niché dans un environnement calme et verdoyant, sur les hauteurs de Beaumont-sur-Lèze. Vous serez séduits par la tranquillité des lieux, à seulement 15 minutes de Muret, tout en profitant d’un cadre naturel privilégié.
Ce terrain bénéficie d’une emprise au sol maximale de 64 m², parfaitement adaptée à la construction d’une maison à étage.
À prévoir : les frais de viabilisation ainsi que l’installation d’un système d’assainissement autonome.
BEAUMONT-SUR-LEZE – Maison TURQUOISE. Dans un environnement paisible, sur ce terrain de 640m², à BEAUMONT-SUR-LEZE, apporté par notre partenaire foncier sous réserve de disponibilité, confiez la réalisation de votre maison sur-mesure à Villas et Maisons de France, constructeur régional avec un process de haute qualité environnementale dans la région occitane.
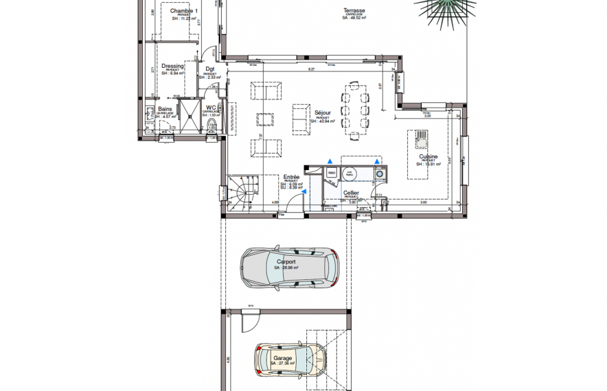
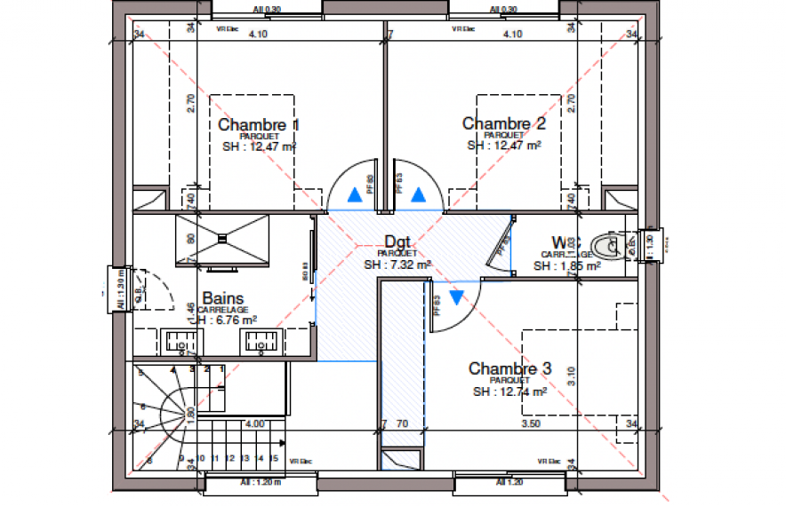
La sublime Maison "TURQUOISE" s'étend sur une superficie de 153m², offrant un cadre aéré pour la vie quotidienne. elle se compose de 4 chambres, dont 3 à l'étage de près de 13 m² avec une belle salle de bains de 6,76 m².
Au rez-de-chaussée, une agréable suite parentale de 11,22 m² avec à l'intérieur, un dressing de 6,94m² et une belle salle de bains de 4,57 m². Un séjour harmonieux de 43,94 m², idéal pour les moments de convivialité et de partage en famille ou entre amis.
La Maison Turquoise se prolonge vers l'extérieur avec une terrasse en L de 46,52 m², un lieu parfait pour profiter de la fraîcheur du plein air. De plus, un garage de 27,36 m² et un carport de 28,98 m², assurant un espace sécurisé pour vos véhicules et besoins de rangement. Cette belle maison crée un havre de paix, confortable, où il fait bon vivre.
Avec un process de haute qualité environnementale, Villas et Maisons de France réduit l’empreinte carbone de votre construction. RE 2020, étiquette énergie A, qualité du traitement de l’étanchéité à l’air, tri sélectif et valorisation des déchets sont garantis et contrôlés. Votre interlocuteur dédié vous assistera dans vos démarches (financement, permis de construire et acte authentique d’acquisition du terrain). Dès l'ouverture de votre chantier, suivez en temps réel et en images, l'avancement de vos travaux avec votre Espace Client Privilège.
Notre Contrat de Construction de Maison Individuelle vous confère Garantie de Livraison, Assurance Décennale Dommages Ouvrage, Garantie de Parfait Achèvement et Biennale. Choisissez Villas et Maisons de France pour une maison sûre, durable et qui vous correspond parfaitement ! Contactez votre chargé de projet Sébastien HOYBEL au 06 66 04 89 45.
Prix avec assurance dommages-ouvrage comprise, VRD non compris, terrain non viabilisé, frais de notaire non compris, frais divers non compris. Terrain sélectionné et vu pour vous sous réserve de disponibilité et au prix indiqué par notre partenaire foncier. Plans contractuels, visuels non contractuels.
je suis intéressé(e) par cette annonce





