Terrain + Maison sur gagnac-sur-garonne - 4 pièce(s) avec terrain de 534 m² 288500 €
Caractéristiques
Réference
TMAM01568187622938
Superficie terrain
534 m2
Viabilisé
Oui
Surface maison
103
Nombre de pièces
4
Nombre de chambre
3
Prix
288 500 €
Description de l'annonce
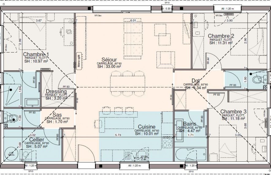
Maison ultra optimisée. La Centaura 103 offre 2 coins nuit. D'un côté l'espace parental autonome avec sa chambre, son dressing et sa salle d'eau. De l'autre côté, 2 chambre et une salle de bain. L'espace de vie propose une cuisine ouverte sur un séjour et accolée à un cellier - buanderie. La maison est équipée de toilettes séparées.
L'ensemble pour un prix ultra compétitif et un process constructif reconnu !
N'hésitez pas à nous contacter pour une visite du terrain avec le particulier propriétaire, en direct sans frais d'agence, et pour une présentation de la maison et de notre entreprise.
Prix avec assurance dommages-ouvrage comprise, VRD non compris, terrain non viabilisé, frais de notaire non compris, frais divers non compris. Terrain sélectionné pour vous sous réserve de disponibilité et au prix indiqué par le propriétaire. Conditions et visuels non contractuels.
je suis intéressé(e) par cette annonce




