Terrain + Maison sur pibrac - 4 pièce(s) avec terrain de 945 m² 358300 €
Caractéristiques
Réference
TMSH0156858C500E50
Superficie terrain
945 m2
Viabilisé
Oui
Surface maison
99
Nombre de pièces
4
Nombre de chambre
3
Prix
358 300 €
Description de l'annonce
Informations du terrain : opportunité rare d’acquérir un superbe terrain constructible et viabilisé idéalement situé à PIBRAC, à l’ouest de Toulouse. À proximité immédiate du cœur de BRAX, il offre un cadre résidentiel paisible tout en profitant de tous les services essentiels à quelques minutes.
Superficie : 945 m²
Emprise au sol : 20 %
Topographie : Terrain plat
Constructibilité : Prêt à bâtir
Viabilités : En bordure du terrain
Centre de Brax accessible à pied
Gare de Brax à quelques minutes à pied : liaisons vers Toulouse, Colomiers...
Secteur calme, verdoyant et recherché
Accès rapide aux axes routiers majeurs
À proximité immédiate de la Forêt de Bouconne / Forêt domaniale de Toulouse, réputée pour ses sentiers, activités sportives et grandes promenades
Commerces & services accessibles à pied
PIBRAC – Villa T4. Proche des commerces et services, sur un terrain de 945 m², apporté par notre partenaire foncier selon disponibilité, Villas et Maisons de France, constructeur avec un process de haute qualité environnementale, vous propose de construire votre maison neuve sur-mesure.
Dans nos locaux, à Toulouse ou à Bordeaux, les dessinateurs-métreurs du bureau d'études, spécialiste de la maison individuelle, vous accueillent chaleureusement pour concevoir vos plans.
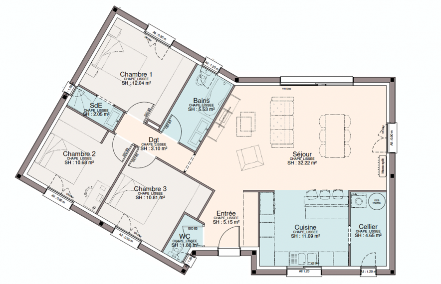
L’architecture Coup de coeur et l’aménagement intérieur du modèle « Voiles », de 99 m² habitables, marient esthétisme, confort et fonctionnalité. Chaque pièce dispose de son point de lumière et tous les espaces sont optimisés. L’entrée dessert ingénieusement les espaces jour et nuit. La pièce de vie dispose de sa cuisine ouverte ou traditionnelle selon vos souhaits. L’espace nuit comprend 3 chambres dont une suite parentale avec salle d’eau et dressing indépendant.
Certifié Properméa et avec un process de haute qualité environnementale, Villas et Maisons de France réduit l’empreinte carbone de votre construction. RE 2020, étiquette énergie A, qualité du traitement de l’étanchéité à l’air, tri sélectif et valorisation des déchets sont garantis et contrôlés. Un interlocuteur unique vous assistera dans vos démarches (financement, permis de construire et acte authentique d’acquisition du terrain). Dès l'ouverture de votre chantier, votre Espace Client Privilège vous permettra de suivre, en temps réel et en images, chaque étape des travaux.
Notre Contrat de Construction de Maison Individuelle vous confère garantie de livraison, assurance décennale dommages ouvrage, garantie de bon fonctionnement et de parfait achèvement. Donnez vie à vos idées, contacter Sébastien HOYBEL au 06 66 04 89 45.
Prix avec assurance dommages-ouvrage comprise, VRD non compris, terrain viabilisé, frais de notaire non compris, frais divers non compris. Terrain sélectionné et vu pour vous sous réserve de disponibilité et au prix indiqué par notre partenaire foncier. Plans contractuels, visuels non contractuels.
je suis intéressé(e) par cette annonce








