Terrain + Maison sur saint-mamet - 5 pièce(s) avec terrain de 657 m² 316900 €
Caractéristiques
Réference
TMAM015681E7FFBE0C
Superficie terrain
657 m2
Viabilisé
Oui
Surface maison
115
Nombre de pièces
5
Nombre de chambre
4
Prix
316 900 €
Description de l'annonce
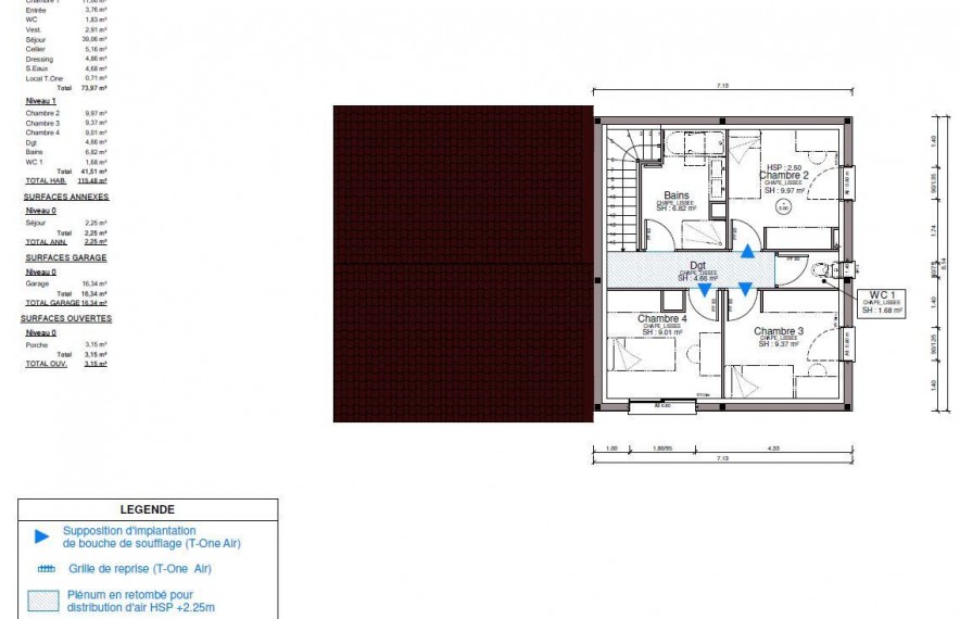
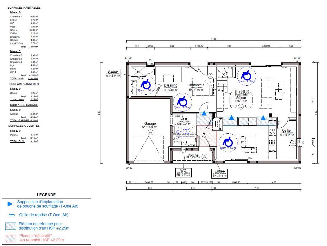
GRAND CHALET FAMILIAL MODERNE ET TOUT CONFORT ! D'une architecture locale traditionnelle mais bénéficiant des dernières innovations en termes d'isolation et de performance énergétique, cette maison est pensée pour son environnement et pour l'environnement ! Conçue pour une famille (et des amis), elle comprend un espace parental autonome et intimiste au RDC avec ses espaces chambre, dressing et salle d'eau.
Le reste du premier niveau prévoit une entrée, des toilettes séparés adaptables aux normes PMR, un vestiaire, une cuisine semi ouverte spacieuse, un cellier et un séjour ainsi qu'un garage de plus de 16m².
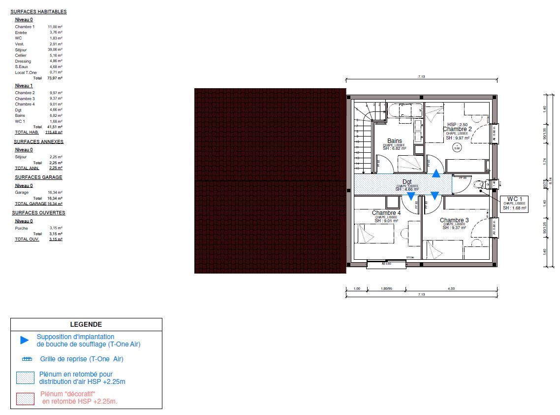
A l'étage, un second espace nuit prévoit 3 chambres et une salle de bain pouvant accueillir douche, baignoire et double vasque.
Le dépôt de permis peut se faire sans délai, dès réservation.
Délai de construction de 12 mois.
N'hésitez pas à contacter Arnaud Mercier au O6 2O 74 42 73
Prix avec assurance dommages-ouvrage comprise, VRD non compris, terrain non viabilisé, frais de notaire non compris, frais divers non compris. Terrain sélectionné et vu pour vous sous réserve de disponibilité et au prix indiqué par notre partenaire foncier. Conditions et visuels non contractuels.
je suis intéressé(e) par cette annonce






