Terrain + Maison sur seysses - 5 pièce(s) avec terrain de 515 m² 253300 €
Caractéristiques
Réference
TMBC0156865CBCE243
Superficie terrain
515 m2
Viabilisé
Oui
Surface maison
107
Nombre de pièces
5
Nombre de chambre
4
Prix
253 300 €
Description de l'annonce
SEYSSES – Villa T5. Dans un environnement calme, sur ce terrain de 515 m², à SEYSSES, apporté par notre partenaire foncier sous réserve de disponibilité, confiez la réalisation de votre maison à Villas et Maisons de France, constructeur régional avec un process de haute qualité environnementale. Pour des plans uniques et exclusifs, découvrez les coulisses de la conception de votre maison et rencontrez les dessinateurs-métreurs de notre bureau d'étude spécialisé, basés dans nos locaux, à Toulouse ou à Bordeaux.
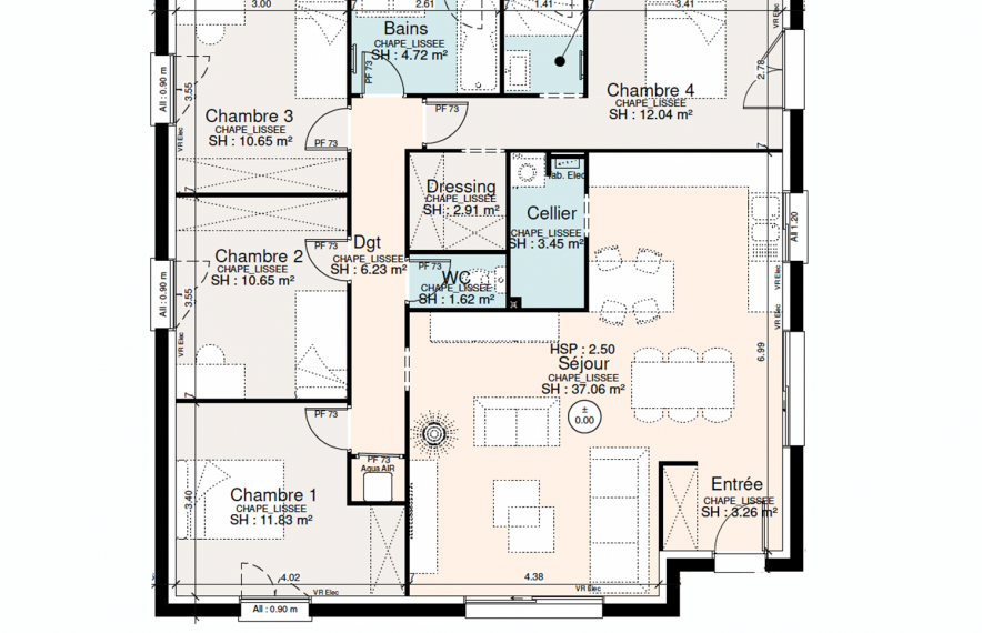
D’un design traditionnel et tendance, mais ajustable à vos goûts, le modèle « Cassiopée 107 » est une villa de 107 m² habitables, baignée de lumière grâce à ses longues baies vitrées. L’espace jour offre 37m² avec coin cellier attenant à la cuisine. 4 belles chambres composent l’espace nuit en respectant l’intimité de la suite parentale.
Certifié Properméa et avec un process de haute qualité environnementale, Villas et Maisons de France réduit l’empreinte carbone de votre construction. RE 2020, étiquette énergie A, qualité du traitement de l’étanchéité à l’air, tri sélectif et valorisation des déchets sont garantis et contrôlés. Votre interlocuteur dédié vous assistera dans vos démarches (financement, permis de construire et acte authentique d’acquisition du terrain). Dès l'ouverture de votre chantier, suivez en temps réel et en images, l'avancement de vos travaux avec votre Espace Client Privilège.
Enfin, notre Contrat de Construction de Maison Individuelle vous confère Garantie de Livraison, Assurance Décennale Dommages Ouvrage, Garantie de bon fonctionnement et de parfait Achèvement. Pour une construction sûre et durable, contacter Bulent COSKUN au 06 12 29 23 50, spécialiste de la maison sur-mesure.
Prix avec assurance dommages-ouvrage comprise, VRD non compris, terrain viabilisé, frais de notaire non compris, frais divers non compris. Terrain sélectionné et vu pour vous sous réserve de disponibilité et au prix indiqué par notre partenaire foncier. Plans contractuels, visuels non contractuels.
je suis intéressé(e) par cette annonce






