Terrain + Maison sur seysses - 4 pièce(s) avec terrain de 515 m² 234900 €
Caractéristiques
Réference
TMBC0156866721CDFC
Superficie terrain
515 m2
Viabilisé
Oui
Surface maison
90
Nombre de pièces
4
Nombre de chambre
3
Prix
234 900 €
Description de l'annonce
SEYSSES – Maison T4. Dans un lieu apaisant, très bien exposé et proche des commerces et services, cette parcelle recherchée de notre partenaire foncier, sous réserve de disponibilité, de 515 m², pourrait accueillir votre projet ! Villas et Maisons de France, constructeur régional expérimenté et avec un process de haute qualité environnementale, est spécialiste de la maison personnalisée écoresponsable.
Participez activement à la conception de vos plans uniques et exclusifs en rencontrant les dessinateurs-métreurs de notre bureau d'études spécialisé, dans nos locaux, à Toulouse ou à Bordeaux.
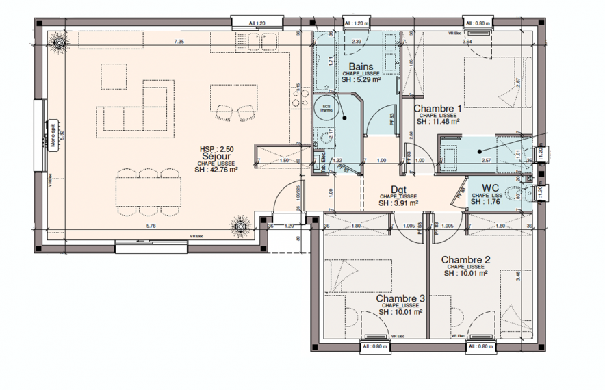
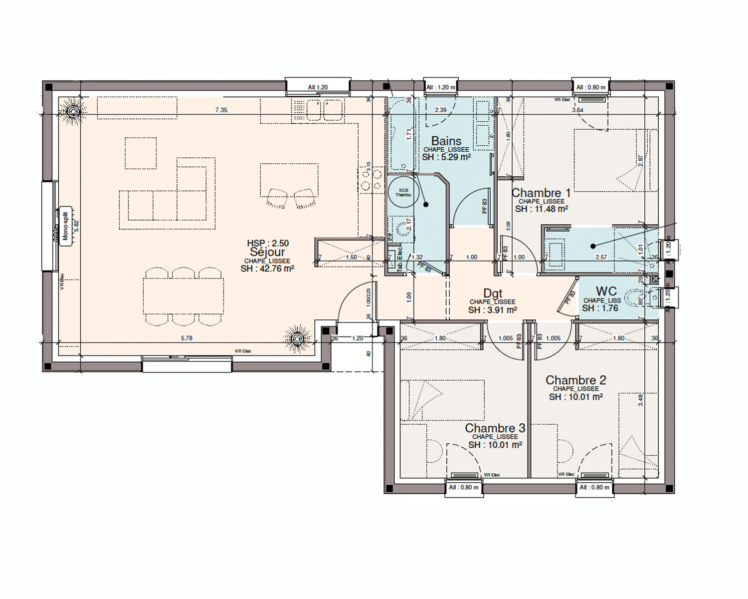
Traditionnel et élégant, le modèle Carène proposé ici, de 90 m² habitables, comprend une partie jour dotée d'une cuisine ouverte sur une pièce de vie lumineuse de 43 m². Côté nuit, le confort est assuré par 3 chambres dont une suite parentale ergonomique, une salle de bain spacieuse et des WC séparés. Un cellier/Buanderie apporte capacité de rangements et fonctionnalité.
Certifié Properméa et avec un process de haute qualité environnementale, Villas et Maisons de France réduit l’empreinte carbone de votre construction. RE 2020, étiquette énergie A, qualité du traitement de l’étanchéité à l’air, tri sélectif et valorisation des déchets sont garantis et contrôlés. Un interlocuteur unique vous assistera dans vos démarches (financement, permis de construire et acte authentique d’acquisition du terrain). Votre Espace Client Privilège vous permettra de suivre, en temps réel et en images, chaque étape des travaux.
Pour votre sérénité, notre Contrat de Construction de Maison Individuelle CCMI, vous confère garantie de livraison, assurance décennale dommages ouvrage, garantie de bon fonctionnement et de parfait achèvement. Construire durable c’est aussi choisir un constructeur 100% régional, contacter Bulent COSKUN au 06 12 29 23 50.
Prix avec assurance dommages-ouvrage comprise, VRD non compris, terrain viabilisé, frais de notaire non compris, frais divers non compris. Terrain sélectionné et vu pour vous sous réserve de disponibilité et au prix indiqué par notre partenaire foncier. Plans contractuels, visuels non contractuels.
je suis intéressé(e) par cette annonce








