Terrain + Maison sur venerque - 5 pièce(s) avec terrain de 1100 m² 317350 €
Caractéristiques
Réference
TMAM0156850755366E
Superficie terrain
1100 m2
Viabilisé
Oui
Surface maison
106
Nombre de pièces
5
Nombre de chambre
4
Prix
317 350 €
Description de l'annonce
Informations du terrain : proche centre ville
VENERQUE – Maison T5. Dans ce lieu paisible, proche des commerces et services, sur cette parcelle rare de 1100 m², apportée par notre partenaire foncier, selon disponibilité, confiez votre projet à Villas et Maisons de France, constructeur régional expérimenté, écoresponsable et avec un process de haute qualité environnementale. Plans uniques conçus pour vous par nos dessinateurs-métreurs du bureau d'études spécialisé, oeuvrant dans nos locaux à 20 km de Toulouse.
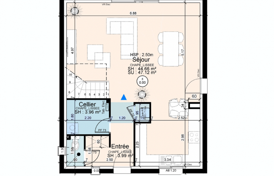
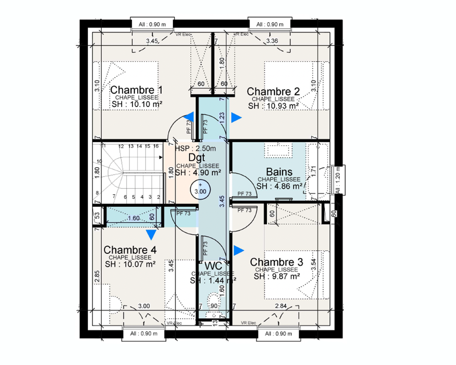
Alliant tradition et modernité, le modèle « Orion 106 », proposé ici, offre un aménagement intérieur de 106 m² habitables, dotés, au RDC, d’un cellier/buanderie attenant à une cuisine ouverte sur un séjour lumineux et traversant de plus de 44m². A l’étage, la partie nuit se compose astucieusement de 4 chambres de 10 à 11 m², d’une salle de bains et d'un WC séparé.
Certifié Properméa et avec un process de haute qualité environnementale, Villas et Maisons de France réduit l’empreinte carbone de votre construction. RE 2020, étiquette énergie A, qualité du traitement de l’étanchéité à l’air, tri sélectif et valorisation des déchets sont garantis et contrôlés. Un interlocuteur unique vous assistera dans vos démarches (financement, permis de construire et acte authentique d’acquisition du terrain). Votre Espace Client Privilège vous permettra de suivre, en temps réel et en images, chaque étape des travaux.
Pour votre sérénité, notre Contrat de Construction de Maison Individuelle CCMI, vous confère garantie de livraison, assurance décennale dommages ouvrage, garantie de bon fonctionnement et de parfait achèvement. Construire durable c’est aussi choisir un constructeur 100% régional, contacter Arnaud MERCIER au 06 20 74 42 73, spécialiste de la maison sur-mesure.
Prix avec assurance dommages-ouvrage comprise, VRD non compris, terrain non viabilisé, frais de notaire non compris, frais divers non compris. Terrain sélectionné et vu pour vous sous réserve de disponibilité et au prix indiqué par notre partenaire foncier. Plans contractuels, visuels non contractuels.
je suis intéressé(e) par cette annonce







