Terrain + Maison sur venerque - 4 pièce(s) avec terrain de 1100 m² 560814 €
Caractéristiques
Réference
TMAM015685DECD94A8
Superficie terrain
1100 m2
Viabilisé
Oui
Surface maison
166
Nombre de pièces
4
Nombre de chambre
3
Prix
560 814 €
Description de l'annonce
Informations du terrain : proche centre ville
Dans un cadre verdoyant, très bien exposée et proche des commerces et services, cette parcelle (apportée par notre partenaire foncier sous réserve de disponibilité), d’une superficie de 1100 m², peut accueillir, dès aujourd'hui, votre projet de construction.
D'un style épuré, fonctionnel et élégant, cette maison T4 est modifiable, à votre convenance, comme tous les créations Villas et Maisons de France.
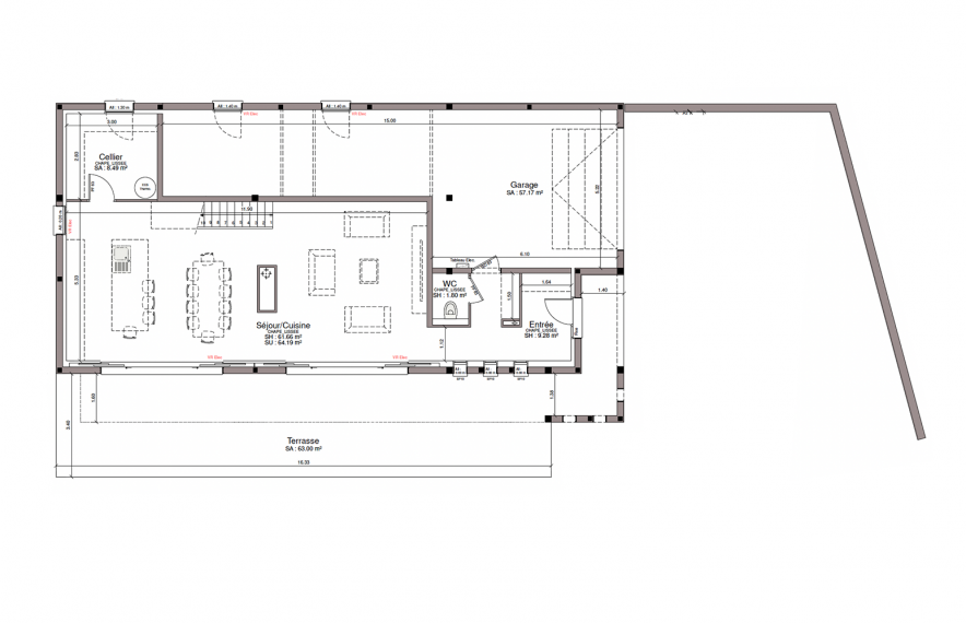
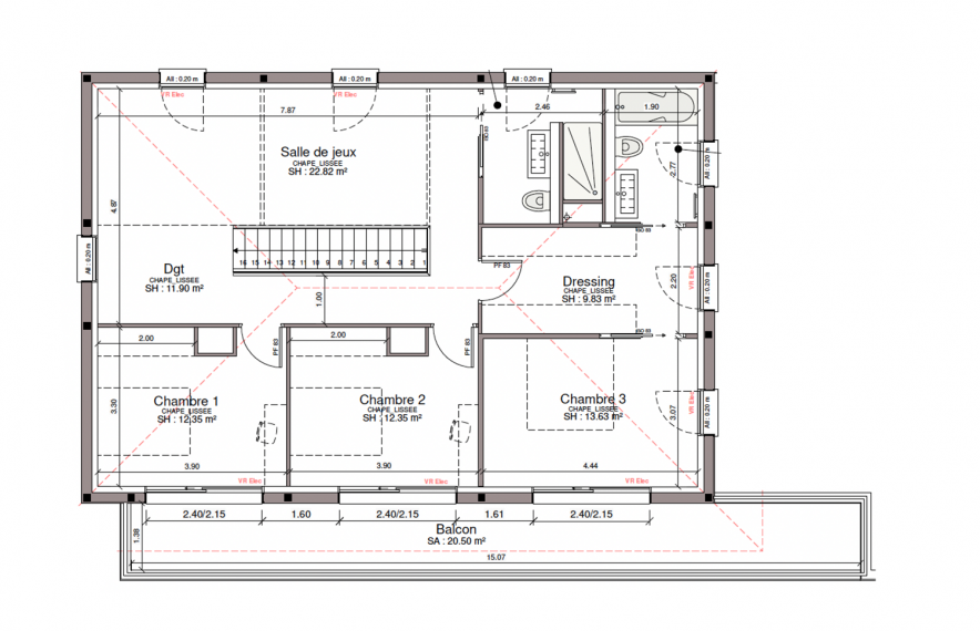
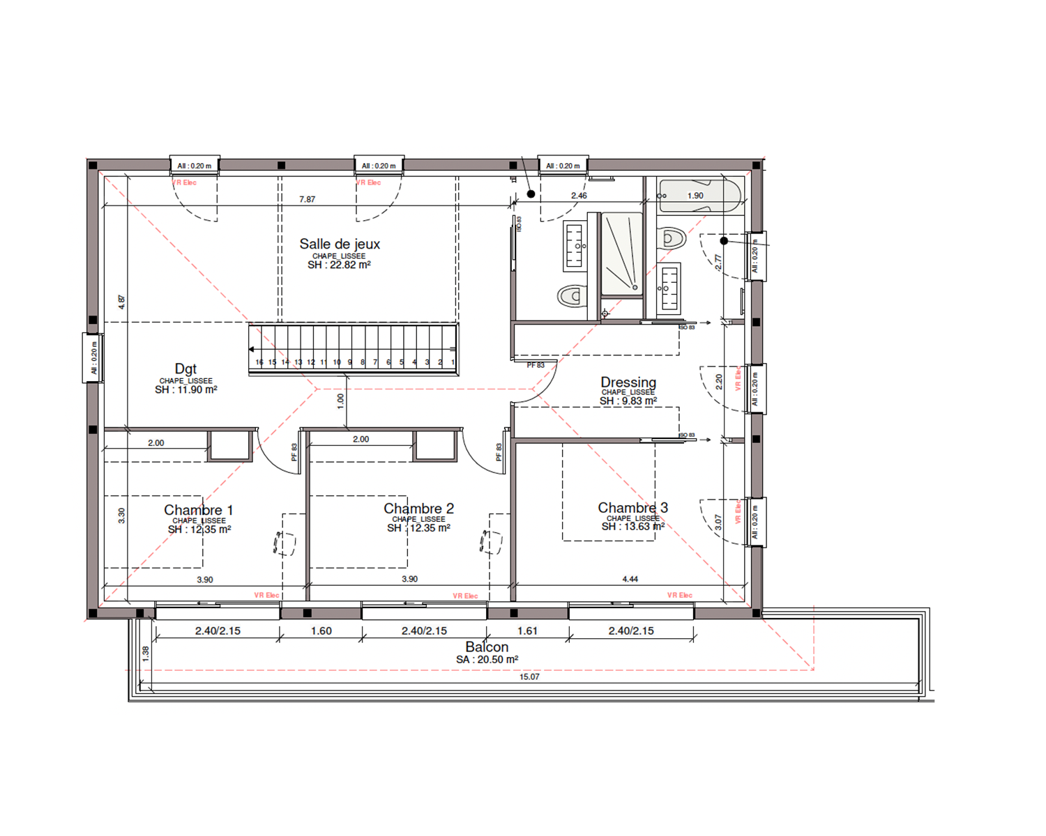
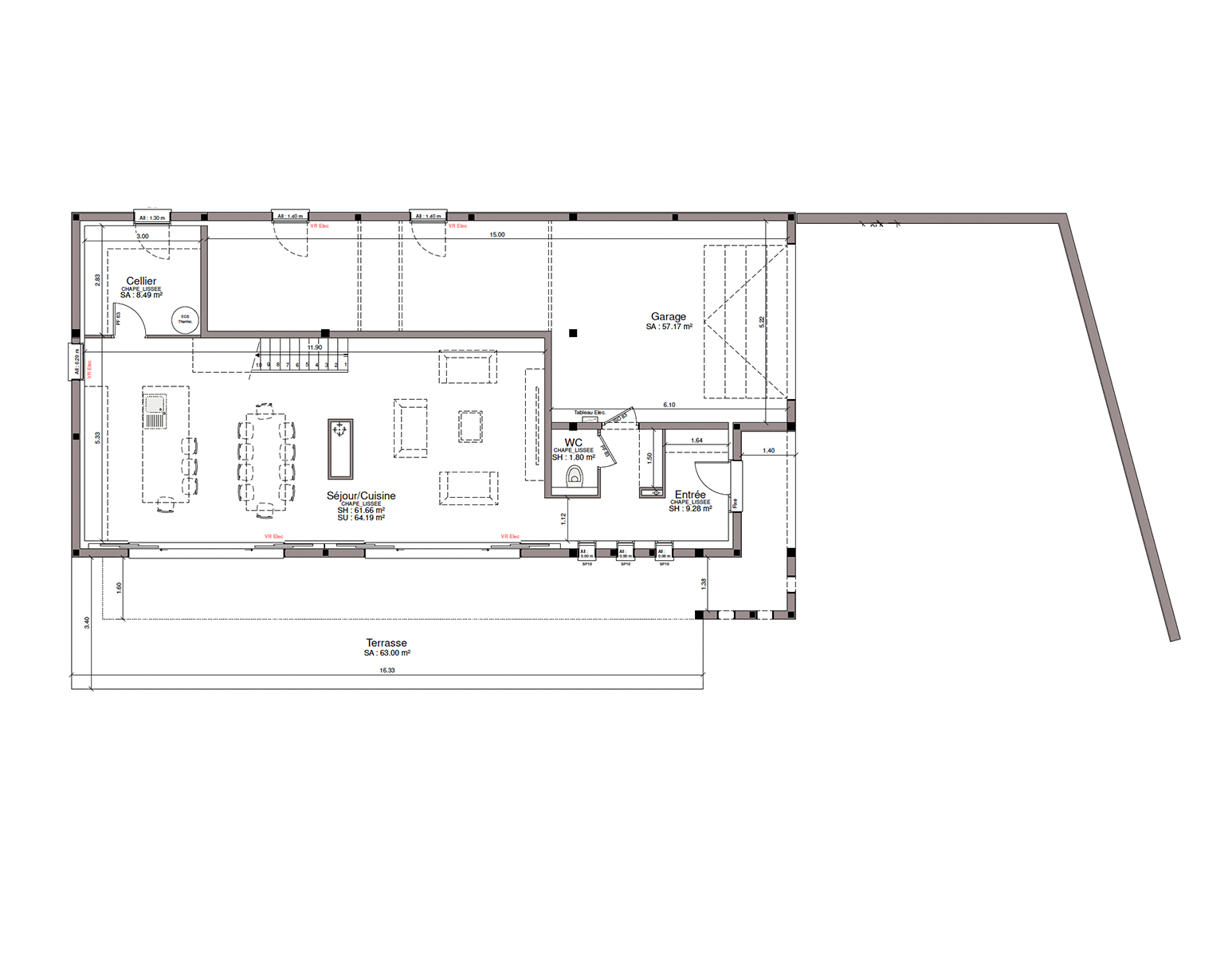
La "AGATE 166" présentée ici, dispose de 166m² habitables. Fonctionnel, son aménagement intérieur comprend à l'étage, un coin nuit avec 3 belles chambres de 12 à 13m² à côté puis un dressing de 9,83 m². 2 salles de bainss de 4,74 m² et de 5,92 m².
Une salle de jeux aérée de 22,82 m² vient s'ajouter à l'étage pour l'amusement de vos enfants. La pièce à vivre, lumineuse, de près de 60 m², comprend salon et salle à manger.
La cuisine ouverte prolonge ce sentiment de confort et prévoit des rangements significatifs dans le cellier accolé.
Avec un process de haute qualité environnementale, nous garantissons la RE 2020, l'étiquette énergie A, la qualité de notre traitement de l’étanchéité à l’air, le tri sélectif et la valorisation des déchets. Villas et Maisons de France vous apporte aussi la sécurité du Contrat de Construction de Maison Individuelle (CCMI), en délivrant Garantie de Livraison, Assurance Décennale et Dommages Ouvrage, Garantie de Parfait Achèvement et de Bon Fonctionnement pris en charge par notre propre SAV.
Profitez d'un accompagnement performant pour vos démarches administratives et bénéficiez d'un Espace Client Privilège pour suivre votre construction en images et en temps réel.
Choisir un constructeur engagé pour la construction durable, c'est dans l'air du temps ! Contacter Arnaud MERCIER au 06 20 74 42 73, spécialiste de la Maison Individuelle HQE en Occitanie.
Prix avec assurance dommages-ouvrage comprise, VRD non compris, terrain non viabilisé, frais de notaire non compris, frais divers non compris. Terrain sélectionné et vu pour vous sous réserve de disponibilité et au prix indiqué par notre partenaire foncier. Plans contractuels, visuels non contractuels.
je suis intéressé(e) par cette annonce





